Tours
Rep Login
Contact Us
Menu
Schedule A Tour
Project Types
Retrofit
New Construction
Markets Served
Industries
Warehouse & Distribution
Manufacturing
Industrial
Auto & Transportation Facilities
Specialty
Market Case Studies
Products
Heating
S-Series Industrial Space Heaters
SA-Series
Make-Up Air
M-Series
Evaporative Cooling
ESC-Series
E-Series
Freeze Protection
Spec Air Series
Parts & Service
Technical Service Support
Additional Info
Parts & Training
How-to Service Videos
Specs & Techs
Contact Us
Find a Representative
Resources
Resources
White Papers & E-Books
Case Studies
Specs & Techs
Energy Use Analysis
CAD Drawings
Videos
"How-To" Videos
YouTube Channel
Success Stories
HVAC Technical Blog
Webinars
Webinar Short Sessions
About
In the News
Enriching Lives Blog
About Cambridge
Careers
History
Leadership
Contact Us
Cambridge Air Solutions Tours
Sustainability
What We Do
Enriching Lives
Rep Login
BLOG
The Importance of Indoor Air Quality: Reasons to Improve Your Environment | Cambridge Air Solutions
6 MIN READ
Some pollutants are 2-5x higher indoors, increasing the risk of health issues. Learn the top reasons to improve your indoor air quality with Cambridge.
Read more
Share
Search any of our blogs by one of the following categories:
Accessories
Applications Engineering
Clean Air
Energy
Evaporative Cooling
Facility Maintenance
General
General
HTHV Heating
Indoor Air Quality
Info Bulletin
Makeup Air
Manufacturing
M-Series
Retrofit Projects
S-Series
Technical News
Ventilation
warehouse heating
Webinar
Cambridge ESC-Series with Two-Stage Cooling Animation
1 MIN READ
In this animation, the technology of a ESC-Series two-stage evaporative cooling unit is showcased.
Read more
Share
3 Trends Driving Manufacturing Excellence
1 MIN READ
In this recorded webinar produced for Engineered Systems in the Fall of 2019, our VP of Sales and Marketing, Doug Eisenhart, discusses the three trends driving manufacturing excellence.
Read more
Share
No More Skinny Ducts
1 MIN READ
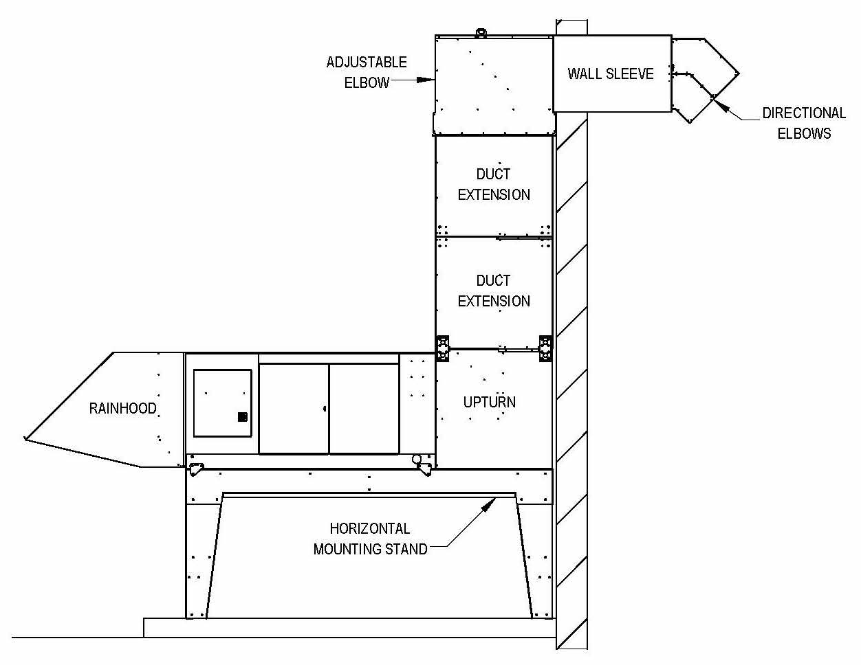
An industrial retrofit contractor who has used Cambridge S-Series heaters for years asked us to provide discharge ductwork. Some of the heaters were vertical stand mounts and some were horizontal stand mounts. The duct we provided was sized to fit the discharge opening of the heater for the vertical mount. For the horizontal mount, our standard downturn was basically rotated 180° and the duct was sized for the discharge opening.
Read more
Share
Prev
1
2
...
6
7
8
9
10
11
12
Rep Search
Please enter your information below so we can help you find the right rep for you.
First Name:
Last Name:
Email Address:
Phone Number:
Zipcode:
How Did You Hear About Us?
Google
Print Ad or Trade Show
Social Media
Other