BurpingABuildingBlog.JPG

Whoever heard of burping a building?

2 MIN READ
We, at Cambridge are frequently involved with heating “spec” buildings. You know how it goes: a developer puts up the shell, pours the concrete slab, heats the building to a minimum temperature the closes it up with no plans for ventilation. At some point in the future, the developer signs up a tenant and proceeds with the tenant fit-out. That is where our story begins.

Read more

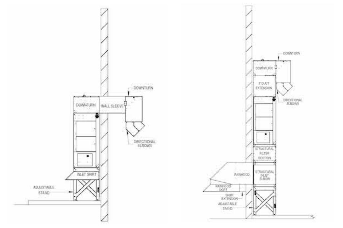
SSeriesThruWallTechBlog1.jpg

Cambridge Information Bulletin - Selection, Placement & Installation of an S-Series Unit - Thru Wall Mounting

2 MIN READ
Cambridge S-Series heaters can be installed in a variety of configurations. When considering industrial retrofit projects, there are several considerations that should be taken into account.

Read more

ESCSemiCustomTechNotes.jpg

Meeting Market Custom Cooling Demands with Cambridge Air Solution's ESC-Series

1 MIN READ
Cambridge Air Solutions is offering the two-stage ESC-Series to meet current market demands for custom cooling units in the industrial and commercial sectors.

Read more

TechNotesInfoBulletin_3.jpg

Cambridge Info Bulletin - Moisture in Buildings

3 MIN READ
In new construction, the primary source of moisture entering the building is most likely from the newly poured concrete slab. The National Ready Mixed Concrete Association (NRMCA) describes the ‘What’ and ‘How’ of concrete slab moisture in their 2004 Concrete in Practice publication CIP 28-Concrete Slab Moisture.

Read more

MakeupAirWithCooling.jpg

Cambridge M-Series Makeup Air with Evaporative Cooling

1 MIN READ
This video features our M-Series Makeup Air technology with evaporative cooling.

Read more

NoWeldingRequiredBlog.jpg

No Welding Required

2 MIN READ
For years we have worked with an industrial retrofit contractor. He often installed vertical S-Series heaters in locations where space was at a premium, both indoors and outdoors. Since Cambridge did not provide a stand for vertical units, he had a structural engineer design a four-legged stand made from 2” x 2” square tubing. The legs would be cut to length in the field and a base plate welded to the leg.

Read more

Rep Search

Please enter your information below so we can help you find the right rep for you.